医院智能照明控制系统解决方案
1、概述
  医院人流比较密集,科室较多,照明用电在医院电能消耗中约占到15%左右。所以合理使用照明控制系统,在提升医生和患者的体验情况下大程度使用自然光照明,通过感应控制做到人来灯亮,人走灯灭或保持地强度照明,尽量解决照明用电。
 
  ASL1000智能照明控制系统可以实现场景控制、时间控制、区域控制、光照度感应控制以及红外感应控制等多种控制方式,能有效避免公共区域的照明浪费,还可以帮助医院管理照明。
 
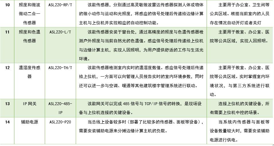
  系统在配电箱内的模块主要有总线电源、开关驱动器、IP网关、耦合器、干接点输入模块等。这些模块使用35mm标准导轨安装。
 
  安装在控制现场的模块主要有光照度传感器、红外传感器和智能面板。有人经过可以设定红外感应控制亮灯,人离开后在设定的时间内熄灯,智能面板等手动控制设备,可实现自动控制、现场控制和值班室远程控制相结合。
2、参考标准

GB/T 20965-2013 《控制网络HBES技术规范 住宅和楼宇控制系统》

3、配置方案
4、系统结构
 
5、系统功能
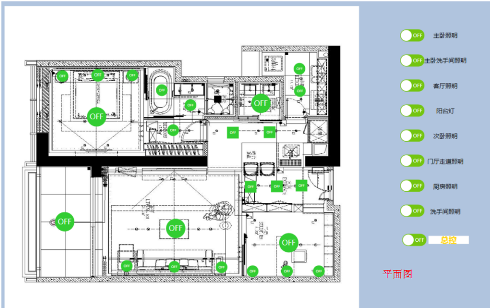
 区域控制
可以通过电脑或者触控终端控制一栋楼、某一层或某个区域所有照明灯具开关。可以对单个照明回路实现开关控制,还可对每个模块、箱子、楼层、自定义分区实现总控。现场受控回路的开关状态会实时反馈。
 
 调光控制
拖动调光控件,照明设备从0%到100%进行调光,点击左右两边的符号,可进行步进调光,一个步进增加/减少20%;通过图标的亮灭状态反馈现场开关的状态。
点击模块调光单控可以对一个模块的照明回路实现调光控制;
点击调光总控,可以对多个照明回路实现调光控制。
 
 定时控制
智能照明控制系统通过时钟管理器,实现有关区域照明的定时和自动管理功能,实现走廊、公共通道、景观照明、泛光照明、车库照明定时控制。如百叶窗定时升降、集中供热定时调节、节假日照明定时关闭、定时通知等。
 
 场景控制
智能照明控制系统根据不同区域的功能需求,设定不同的场景模式,完成各种照明灯具的控制组合,达到美化工作环境、提高舒适度。
 
 人体感应控制
在通道、走廊、公共区域、楼梯间、会议室等场所布置人体感应传感器,当人员进入区域时,自动打开照明;当人员离开后,延迟一段时间再关闭,根据需求设定。
 
 窗帘控制
窗帘控制有两种控件,一种是开关和步进调节功能;另一种是无极调节和步进调节功能。
点击窗帘单控控件,可以开合百叶窗/窗帘或者调整百叶角度;
点击窗帘总控图标,可以对多路窗帘实现调光控制;
通过图标的亮灭状态,反馈现场窗帘的开合状态,数值表示窗帘的相对动作的值。
 
 电流检测
读取带电流检测开关驱动器所有回路的电流、开关控制,并自动分析回路是否有故障状态。电流值、故障状态显示、开关状态会实时反馈在界面上。
 
客服1
客服2
客服3
客服4